Descrizione

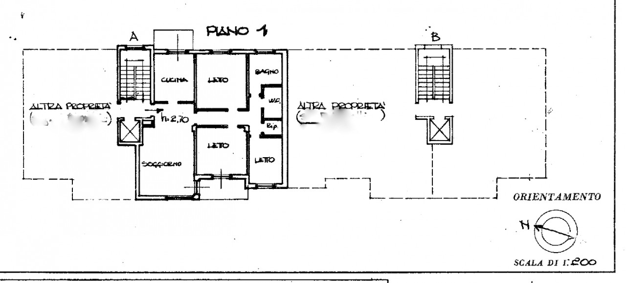
Se cerchi casa in una zona comoda, servita e ben collegata... fermati un attimo qui. Siamo in uno dei quartieri residenziali più richiesti di Verona, comodo alla tangenziale e ricco di servizi. Qui ti proponiamo un appartamento al primo piano con ascensore, ideale per chi cerca spazio, comfort e praticità. La disposizione degli spazi? Pensata per viverla al meglio. Appena entri trovi un bel soggiorno separato dalla cucina abitabile – entrambi con accesso al balcone, perfetti per godersi un po’ di aria aperta o organizzare cene estive. La zona notte è ben distinta e riservata, con due camere matrimoniali, una camera doppia e due bagni (uno finestrato e uno con ventilazione forzata): spazio per tutti, senza rinunciare alla privacy. Completa la proprietà un garage al piano terra, comodo e facilmente accessibile. Se cerchi una casa spaziosa, funzionale e già pronta per accogliere la tua vita… questa potrebbe essere la scelta giusta. Scrivici o chiamaci, sarà un piacere mostrartela di persona.

Caratteristiche

Superficie:
120 M2
Contratto:
vendita
Condizione immobile:
ottimo
Riscaldamento:
centralizzato
Giardino condominiale
Balcone
Tipologia:
Appartamento
Soggiorno/Salotto:
1
Arredamento:
completo
Aria condizionata
Ascensore
Anno costruzione:
1975

Planimetria


In primo piano

Verona - Borgo Trento

€ 470.000
BORGO TRENTO - VR - APPARTAMENTO AL PIANO ALTO CON TRE CAMERE E BOX AUTO

Eleganza e Comfort a Borgo Trento - La Tua Nuova Casa Ti Aspetta! Benvenuti nel cuore di Borgo Tren...

Vedi Immobile

San Giorgio di Mantova

Trattativa riservata
VILLA D'EPOCA CON PARCO E BARCHESSA

Alle porte di Mantova, immersa in un parco secolare, si trova la magnifica villa storica conosciuta ...

Vedi Immobile

Sommacampagna - Custoza

€ 1.400.000
CUSTOZA - VR - VILLA PANORAMICA CON 5 ETTARI DI TERRENO E VIGNETO

Se stai cercando una proprietà immersa nel verde, con una vista che toglie il fiato e spazi autenti...

Vedi Immobile