Descrizione
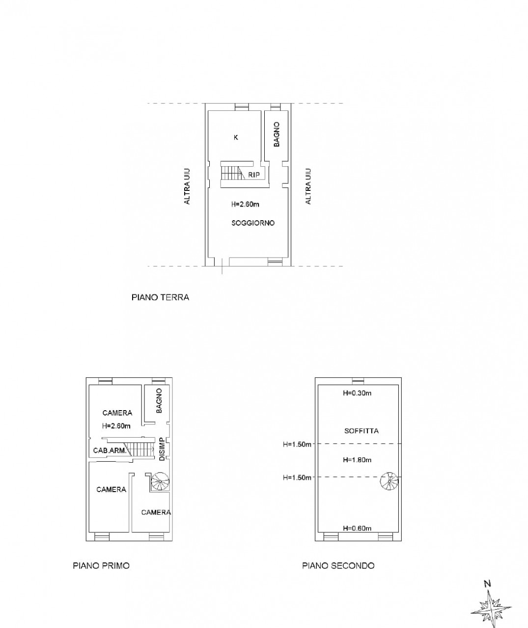
Villa terra-cielo in corte tranquilla – San Massimo, Verona Se stai cercando una casa vera, indipendente e senza spese condominiali, fermati un attimo: potresti averla appena trovata. Nel cuore di San Massimo, uno dei quartieri più richiesti e apprezzati di Verona, proponiamo villa a schiera / abitazione terra-cielo disposta su tre livelli, inserita in una corte riservata e silenziosa, lontana dal traffico ma comoda a tutto. Al piano terra l’ingresso apre su un accogliente soggiorno, una cucina abitabile (quella dove si vive davvero) con pratico ripostiglio e un bagno. Salendo al piano primo troviamo tre camere da letto e un secondo bagno, ideali per una famiglia che vuole spazio e privacy. Il secondo piano è una vera chicca: grandissima soffitta con travi a vista, perfetta come studio, zona relax o stanza hobby. Non finisce qui: ✔ Box auto di proprietà ✔ Spazio esterno privato, raro e prezioso ✔ Taverna / dependance camino, ideale per cene, ospiti o tempo libero La casa è in buone condizioni, con riscaldamento autonomo, aria condizionata e un dettaglio che fa la differenza: tetto completamente rifatto di recente. Zero lavori urgenti, entri e vivi. Una soluzione ideale per chi vuole indipendenza, spazio e la tranquillità di un contesto residenziale, senza rinunciare alla comodità della città. Contattaci per maggiori informazioni o per fissare una visita: dal vivo rende ancora di più.
Caratteristiche
- Superficie:
- 160 M2
- Contratto:
- vendita
- Riscaldamento:
- autonomo
- Giardino privato
- Sì
- Taverna
- Sì
- Tipologia:
- Villetta a schiera
- Soggiorno/Salotto:
- 1
- Aria condizionata
- Sì
- Soffitta
- Sì
Planimetrie


In primo piano
Verona - San Massimo
Villa terra-cielo in corte tranquilla – San Massimo, Verona Se stai cercando una casa vera, indip...
Verona - San Zeno
Se sogni di vivere in un contesto storico e raffinato, questa è l’occasione che fa per te! Situat...
Verona - Borgo Trento
Immobiliare Ledri ti propone in collaborazione con Quality Real Estate un raffinato BILOCALE situato...